École maternelle et ÉlÉmentaire
Neuve-Église
Concours 2025
informations
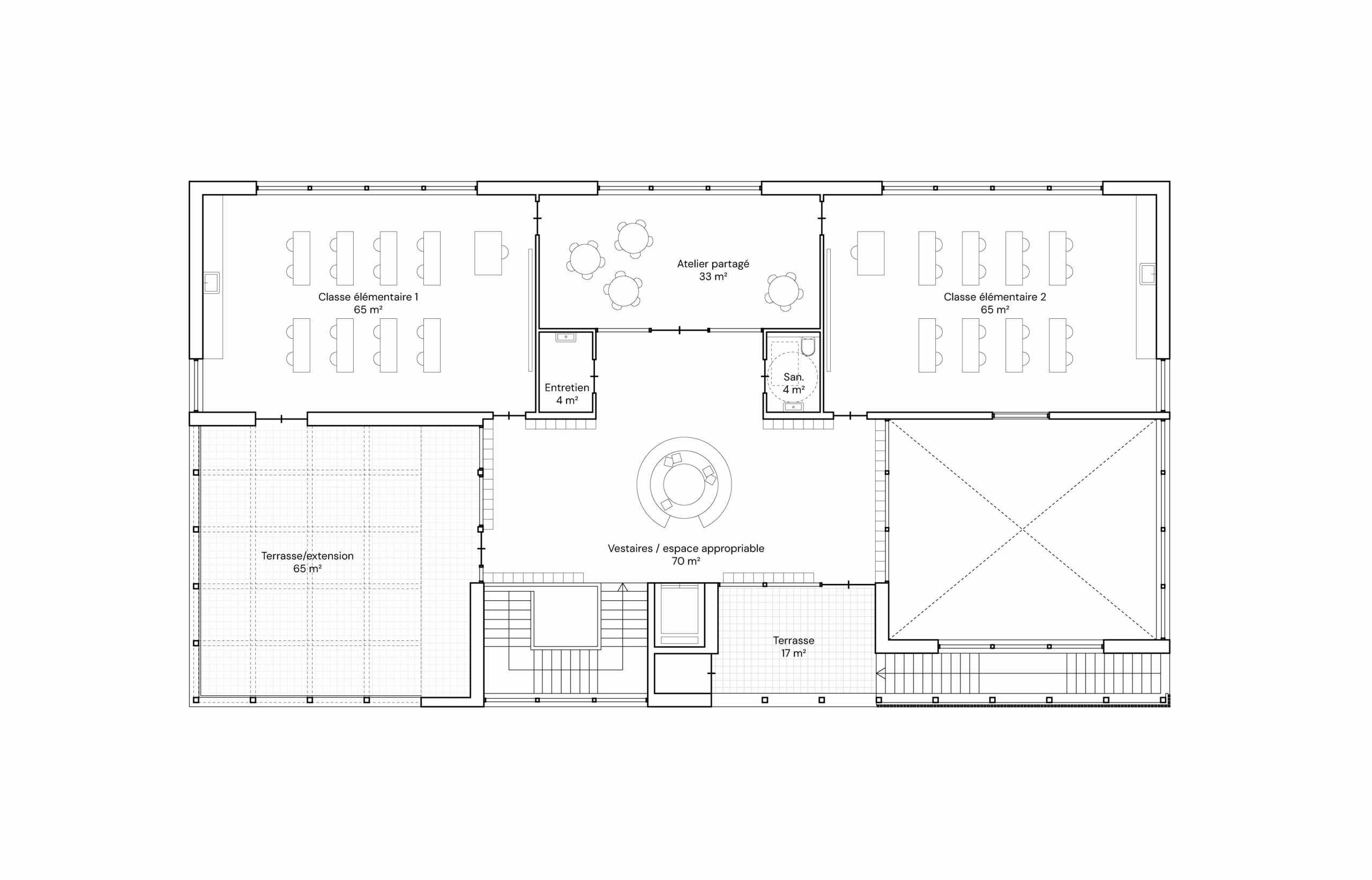
Surface : 600 m² SU
Montant des travaux : 2 M€ HT
équipe
MW architectes mandataires
Atelier Moka paysagiste
MH Ingénierie + E3 Economie + Gantha
programme
École maternelle et élémentaire avec ateliers et salle de repos.






tous les projets

